- Trang chủ
- Về Meeco
- Dự án
- Sản phẩm
- Góc kỹ thuật
- Bản tin
- Tuyển dụng
- Liên hệ
I. CƠ SỞ THIẾT KẾ
Hồ sơ thiết kế được lập dựa trên các cơ sở sau:
Quy chuẩn xây dựng Việt nam | |
QCXDVN 09:2005 | Quy chuẩn xây dựng Việt nam – các công trình xây dựng sử dụng năng lượng có hiệu quả |
11 TCN 18¸21:2006 | Quy phạm trang bị điện |
TCVN-4756:1989 | Quy phạm nối đất và nối không |
TCXD 25:1991 | Đặt đường dẫn điện trong nhà ở và công trình công cộng – Tiêu chuẩn thiết kế |
TCXD 27: 1991 | Đặt thiết bị điện trong nhà ở và công trình công cộng – Tiêu chuẩn thiết kế |
TCXDVN 394:2007 | Thiết kế lắp đặt trang thiết bị điện trong các công trình xây dựng – Phần an toàn điện |
II. TIÊU CHUẨN VÀ GIẢI PHÁP KỸ THUẬT
Nếu phòng có đặt bồn dầu dự phòng hoặc các tủ khác thì phải tính thêm chiều rộng bồn dầu dự phòng + tủ hoặc thiết bị khác.
Nếu phòng có đặt bồn dầu dự phòng hoặc các tủ khác thì phải tính thêm chiều dài bồn dầu dự phòng + tủ hoặc thiết bị khác.

2. Bệ máy và giảm chấn
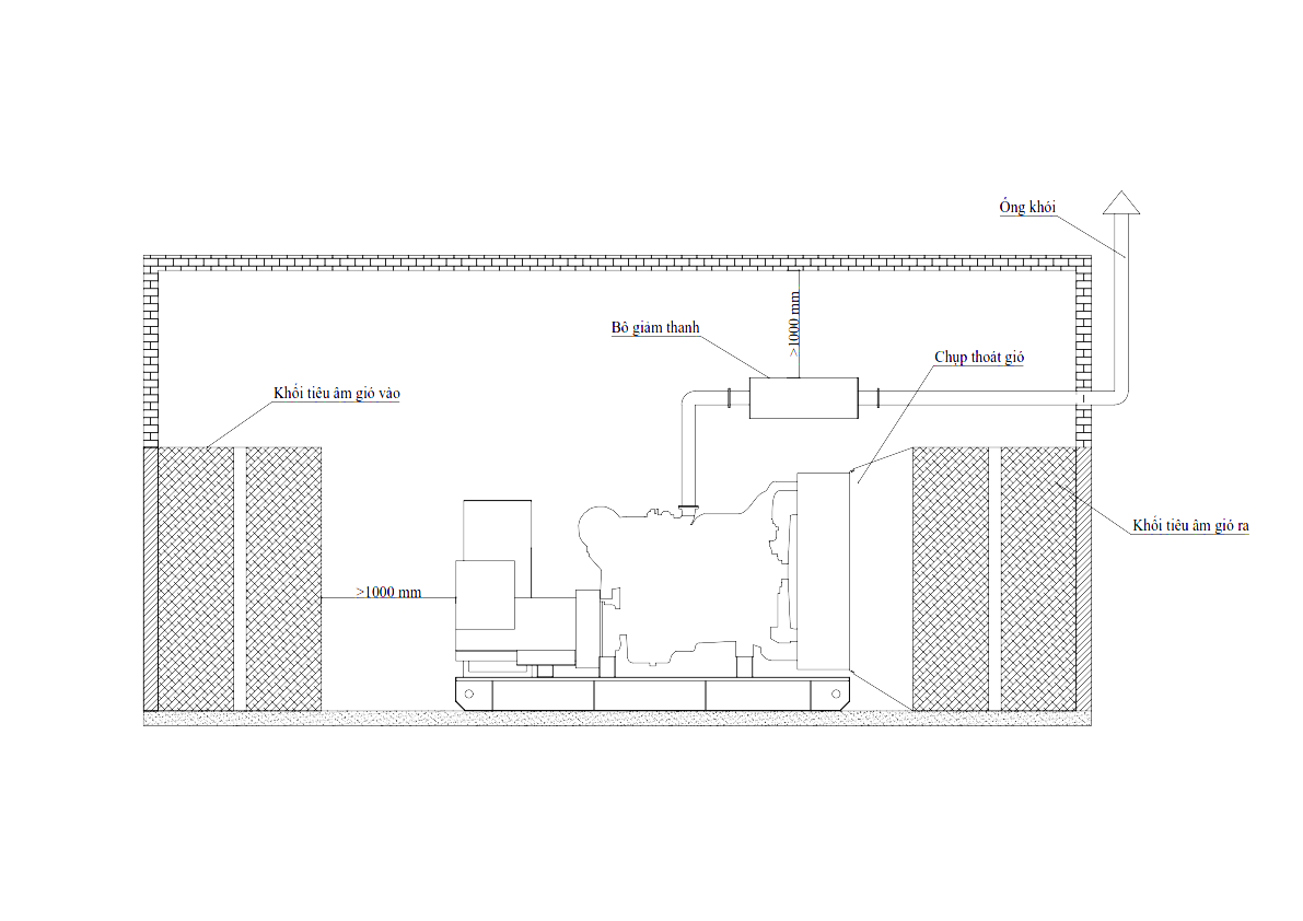
Ở những công trình gần khu dân cư, khu vực đông người, bệnh viện, trường học... yêu cầu độ ồn khi máy phát hoạt động phải thấp để không gây ô nhiễm tiếng ồn. Do đó cần có biện pháp chống ồn (cách âm) cho phòng máy bằng cách xây dựng hệ thống tiêu âm cho phòng máy hoặc bô giảm thanh cho máy.
Độ ồn yêu cầu thông thường ở Việt Nam yêu cầu
Hệ thống tiêu âm bao phòng máy bao gồm:


4. Hệ thống cấp dầu
Với các tổ máy phát điện công suất nhỏ, bồn chứa dầu diesel thường được thiết kế ở khung sắt si của máy và đảm bảo được cho máy chạy 100% tải từ 5-12h. Nhưng đối với các tổ máy phát điện công nghiệp công suất lớn thường không có bồn dầu diesel kèm theo vì kích thước của các tổ máy này lớn, việc thiết kế bồn dầu diesel dưới khung sắt si sẽ ra tăng kích thước và trọng lượng của tổ máy, rất khó để di chuyển chúng.
Tùy theo công suất và lượng tiêu thụ dầu của máy ta tính toán dung tích bồn dầu cho máy. Thông thường sẽ có 2 hệ thống cấp dầu như sau.

5. Hệ thống thoát khí thải
Cũng giống như hệ thống tiêu âm phòng máy, hệ thống thoát khí thải cũng cần đảm bảo các tiêu chuẩn để giảm bớt lượng khí gây ô nhiểm thoát ra môi trường. Do đó phải làm thêm hệ thống thoát khí thải để đảm bảo tiêu chuẩn môi trường.
Tiêu chuẩn trên được đánh giá qua các thông số sau:
Tên chỉ tiêu | Đơn vị | Phương pháp thử | QCVN 19:2009/BTNMT/B |
CO | Mg/Nm3 | TCVN 7242:2003 | ≤ 1000 |
SO2 | Mg/Nm3 | US EPA method 6 | ≤ 500 |
NO2 | Mg/Nm3 | US EPA method 6 | ≤ 850 |
Bụi tổng | Mg/Nm3 | US EPA method 6 | ≤ 200 |
Hệ thống thoát khí thải bao gồm hệ thống đường ống dẫn khói và bộ lọc khói.
Bộ lọc khí thải được làm bằng thép không gỉ T304, đảm bảo cho thiết bị có tuổi thọ lâu dài. Bộ lọc khí thải được chế tạo phù hợp với Báo cáo thử nghiệm số 2599209, tháng 9 năm 1999, theo các qui định của Ban tiêu chuẩn sản phầm của Singapore, dựa trên tiêu chuẩn Anh BS 3405 91983).
Bộ lọc khí thải dựa trên nguyên lý các phản ứng hóa học:
CO + 1/2O2 → CO2
HC + 1/202 → CO2 + H2O
PAH + O2 → CO2 + H2O
Aldehydes + O2 → CO2 + H2O
Nồng độ các loại khí thải sau khi có bộ lọc:
Carbon Monoxide * giảm đến 90%
Hydrocarbons * giảm đến 90%
Hạt muội * giảm tới 25-30%
Phân số hữu cơ hòa tan * giảm lên đến 85%
(* Trong điều kiện nhiệt và điều hành tối ưu)
Trong phòng máy phát điện lắp đặt 2 hệ thống nối đất:
Hệ thống nối đất trạm phòng máy phát bao gồm các tầm nối đất và dây nối đất.
Tất cả trung tính máy phát, các vỏ máy, giá đỡ, tủ hạ thế, cửa thép ra vào và các vật liệu bằng thép đều được nối với hệ thống tiếp địa. . .
Phòng trạm phát điện được thiết kế chiếu sáng và ổ cắm điện. Điều khiển hệ thống chiếu sáng bằng công tắc đặt tại cửa ra vào.
Dây dẫn mạch chiếu sáng dùng loại dây đồng bọc PVC tiết diện 2x1,5mm2 luồn trong ống thép.
Hệ thống chiếu sáng phải đảm bảo độ sáng đủ cho việc vận hành, bảo trì bảo dưởng. Không bị lấp sáng.
Phải có bình cứu hoả trong phòng đặt thiết bị.
Khi có cháy nổ phải cắt ngay nguồn điện, dùng bình chống cháy để dập tắt đám cháy, sơ cứu cho người (nếu bị thương), đưa người bị tai nạn vào cơ sở y tế gần nhất, bảo vệ hiện trường.
Nếu đám cháy có nguy cơ lan rộng và không tự dập tắt bằng dụng cụ cứu hoả thông thường, báo cho Cảnh sát phòng cháy chữa cháy và chủ đầu tư biết.